Budapest, XI.kerület

 

Irányár: 616 124 Ft/hó
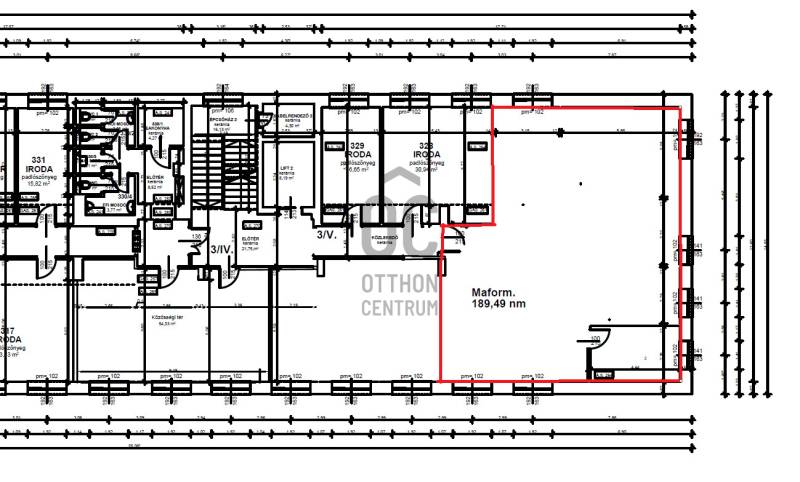
Típus: iroda
Kategória: kiadó
Alapterület: 150 m2
Fűtés: -
Állapota: -
Szobák száma: -
Építés éve: -
Szintek száma: -
Telekterület: -
Kert mérete: -
Erkély mérete: -
Felszereltség: -
Parkolás: -
Kilátás: -
Egyéb extrák:  
-

Részletes leírás

A minimum bérbeadási idő 2 év. • 2 (Kettő) éves időtartam esetén a Bérleti díj 10,5 Euro/m2/hó + ÁFA, emellett megfizetésre kerül az Üzemeltetési költség, amely 5 Euro/m2/hó + ÁFA, és külön számítandó a +rezsi költség is. (tartalmazza az áram, gáz szolgáltatást), melynek elszámolása az áram esetében külön mérőóra alapján, a gáz elszámolása területarányosan történik. • 3+ (Három) éves időtartam esetén a Bérleti díj 10 Euro/m2/hó + ÁFA, emellett megfizetésre kerül az Üzemeltetési költség, amely 5 Euro/m2/hó + ÁFA, és külön számítandó a +rezsi költség is. (tartalmazza az áram, gáz szolgáltatást), melynek elszámolása az áram esetében külön mérőóra alapján, a gáz elszámolása területarányosan történik. A bérleti díj módosítása a Központi Statisztikai Hivatal (KSH) által közzétett inflációs index szerint minden év január 01. napjával történik meg. A fent említett árak a bútorozatlan irodahelyiségre vonatkoznak, bútorozottan az ár változik. Amennyiben bútorozottak kívánják kivenni a helyiséget, jelezzék felénk. Magyarázat: Rezsi: A fent említett díjakon felül Bérlő megfizeti a Bérlemény mindenkori közüzemi díjait (áram és gázfogyasztás díja) oly módon, hogy a Bérbeadó a közüzemi szolgáltatók által, részére kiszámlázott közüzemi díjakat továbbszámlázza a Bérlő részére.A villamosenergia szolgáltatás tekintetében a Bérbeadó és a Bérlő Hálózati Szolgáltatás és villamosenergia továbbadási szerződést kötnek egymással, amelynek alapján kerül a Bérlő által felhasznált villamosenergia átadásra és kiszámlázásra.A gázszolgáltatás tekintetében a Bérlő területarányos díjfizetésre köteles, ennek megfelelően az Irodaház havi gázfogyasztásának számlájából, az általa bérelt területtel arányos mértékű részt tartozik a Bérbeadó részére megfizetni. A közüzemi díjak jelen pont szerinti megfizetése a Bérbeadó által kibocsájtott (továbbszámlázott) közüzemi számlákon feltüntetett határidőben esedékes. Mosdó, valamint konyha a közös folyosón található.A lift teherbírása 680 kg.Irodaházunknál 3 db felszíni parkolóhelyet tudunk biztosítani, ennek az ára 80 EUR+ÁFA/hó.Mélygarázsban található parkolóhely igény szerint bérelhetők.

Hirdető adatai

Nyomtatóbarát változat
Ingatlan hirdetés ajánlása   Ingatlan monitor
Hirdető neve: Otthon Centrum
Kapcsolattartó: Szilágyi Dezső
Hirdető telefonszáma: +36 70 716 8811
Honlap: -