Jász-Nagykun-Szolnok megye, Örményes

 

Irányár: 11 500 000 Ft
Típus: ház
Kategória: eladó
Alapterület: 56 m2
Fűtés: gáz (konvektor)
Állapota: felújítást igényel
Szobák száma: 2
Építés éve: 1970
Szintek száma: -
Telekterület: 1 531 m2
Kert mérete: 1 531 m2
Erkély mérete: -
Felszereltség: -
Parkolás: -
Kilátás: -
Egyéb extrák:  
-

Részletes leírás

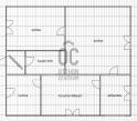
1970-as években épült családi ház- csendes, nyugodt környék- 2 szoba - előszoba- fürdő és WC - konyha/étkező- kamra- fa nyílászárók- gázkonvektor- villanybojler- 400V, 3x16A villamosáram- jó tetőszerkeze cseréppel- beton alap- tégla falazat (vizesedésmentes)A teleken található még egy ~40m2 gazdasági épület. Melynek felosztása: tároló és ólak és egy takarmánygóré. A kert, gyepes, fás parkszerű és ásott kútKözelben horgászható vizek, vegyesboltok, vasútállomás. ~6,5km-re a 4-es út, közelben, ~1,5 km-re épül M4 autóút is. A mellékelt alaprajz csak tájékoztató jellegű!A hirdetésben szereplő információkat a megbízótól kaptuk, irodánk azokért felelősséget nem vállal.Irodánkban bankfüggetlen hitel, Falusi CSOK, CSOK plusz, babaváró támogatás közvetítésével állunk ügyfeleink rendelkezésére.Amennyiben az ingatlan felkeltette az érdeklődését és figyelmét, kérem, keressen bizalommal!Nézzük meg együtt!Ez az ingatlan a \"Hűség csomag\" megbízási portfólióhoz tartozik. Részletek az Otthon Centrum weboldalán.

Hirdető adatai

Nyomtatóbarát változat
Ingatlan hirdetés ajánlása   Ingatlan monitor
Hirdető neve: Otthon Centrum
Kapcsolattartó: Csank József
Hirdető telefonszáma: +36 70 469 3601
Honlap: -