Zala megye, Újudvar

 

Irányár: 109 900 000 Ft
Típus: ház
Kategória: eladó
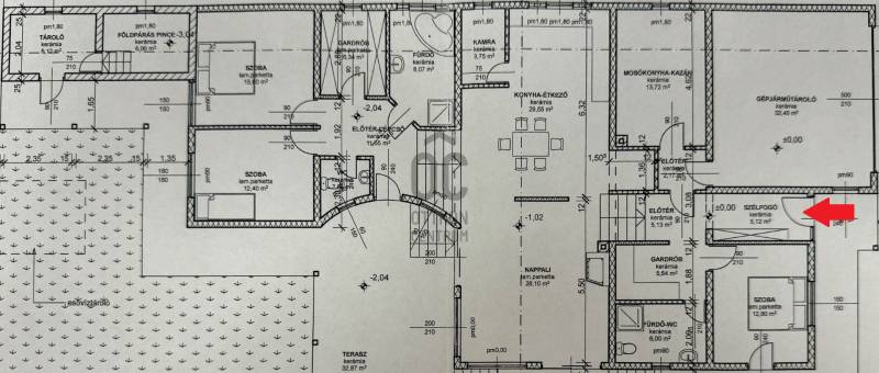
Alapterület: 201 m2
Fűtés: gáz (cirko)
Állapota: -
Szobák száma: 4
Építés éve: 2008
Szintek száma: -
Telekterület: 1 200 m2
Kert mérete: 1 200 m2
Erkély mérete: 33 m2
Felszereltség: -
Parkolás: -
Kilátás: -
Egyéb extrák:  
-

Részletes leírás

Új tulajdonosát keresi ez a valóban világos, 4 szobás, könnyűszerkezetes, szinteltolásos családi ház, ideális telekmérettel, Nagykanizsától nem messze!Ha kellemes, tágas otthont keres, nyugodt, zöld környezetben, ezt házat feltétlenül nézze meg!INGATLAN ELHELYEZKEDÉSE:- Nagykanizsa szomszédságában, kb. 8 km re található az ingatlan.- Tömegközlekedés szempontjából buszjárat megoldott.- Autóval kényelmes 5-8 perc alatt elérhető Nagykanizsa.A HÁZ JELLEMZŐI:- Az 1200 m2 telken elhelyezkedő ház 2008-ban épült.- Nettó 201 m2.- 2 fürdőszoba.- A beton alapra épült ingatlan, fa falszerkezettel és födémszerkezettel, valamint fa tetőszerkezettel és bitumenes zsindelyfedéssel készült.- Padlóban 4 cm, a födémen pedig 2x20 cm üveggyapot hőszigetelés került elhelyezésre.- A ház külső falszerkezete 12 cm vastag üveggyapot, valamint 8 cm vastag dryvit hőszigetelést kapott.- Napelem rendszer található az ingatlanon, mely rásegít a melegvíz előállításban.- 3 fázis csatlakozás elérhető.- Nyílászárói hőszigetelt fa nyílászárók.- A melegért gáz-cirkó fűtés gondoskodik, külső hőmérséklet érzékelővel.- A három szoba kivételével padló és radiátoros fűtés, a szobákban pedig csak radiátoros fűtés van kiépítve.- Tájolása dél-kelet-nyugati.- Belmagasság 260 cm.Ha felkeltette érdeklődését ez a nem mindennapi ház, HÍVJON FEL és nézzük meg együtt!Irodánk teljes körű, ingyenes szolgáltatást nyújt kereső ügyfeleinknek. Szakszerű tanácsadással, hitel ügyintézéssel, energetikai tanúsítvány elkészítésével és kedvező díjszabású ügyvéddel nyújtunk segítséget!Bővebb információért és a megtekintéssel kapcsolatban várom HÍVÁSÁT a hét minden napján!

Hirdető adatai

Nyomtatóbarát változat
Ingatlan hirdetés ajánlása   Ingatlan monitor
Hirdető neve: Otthon Centrum
Kapcsolattartó: Latin Richárd
Hirdető telefonszáma: +36 70 412 3621
Honlap: -