Zala megye, Hévíz

 

Irányár: 159 800 000 Ft
Típus: ház
Kategória: eladó
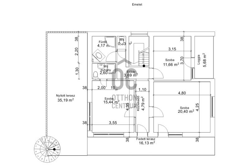
Alapterület: 150 m2
Fűtés: gáz (cirko)
Állapota: -
Szobák száma: 5
Építés éve: 1995
Szintek száma: -
Telekterület: 700 m2
Kert mérete: 700 m2
Erkély mérete: 50 m2
Felszereltség: -
Parkolás: -
Kilátás: -
Egyéb extrák:  
-

Részletes leírás

Hévíz szívében, a Zala vármegye gyönyörű környezetében kínálunk eladásra egy kivételes, prémium kivitelezésű családi házat, mely tökéletes választás lehet mindazok számára, akik a nyugodt, csendes környezetet keresik, de mégis közel szeretnének maradni a város nyújtotta lehetőségekhez. Az ingatlan magját egy 150 négyzetméteres alapterülettel képzi, amely öt tágas szobát foglal magában, mindezek mellett 3 teljes ellátottságú apartmant, mely akár szobakiadásra is alkalmas lehet és bőséges teret biztosít a család minden tagja számára, akár több generációnak is. A ház hat fürdőszobával büszkélkedhet, ami különösen praktikus, ha vendégeket fogadna, vagy egyszerűen csak a kényelmet szeretné élvezni. A ház állapota kiváló, a modern fűtési rendszer gáz (cirko), illetve egy cserépkályha biztosítja a kellemes hőmérsékletet télen, míg a 3 darab klíma a nyári melegben nyújt felfrissülést. A tágas nappali LED hangulatvilágítással és beépített bútorokkal, valamint szekrényekkel van felszerelve, ami nemcsak esztétikus, hanem praktikus megoldásokat is kínál. Az ingatlanhoz tartozik egy 50 négyzetméteres panorámás terasz, amely ideális helyszín lehet a családi összejövetelekhez vagy a pihenéshez. A kertben egy 8 személyes jakuzzi is rendelkezésre áll a család, mind a vendégek számára.A rendezett kert és a kerti tároló további előnyöket nyújt, lehetőséget teremtve a szabadidős tevékenységekre. Mindezek mellett található több kerti fedett kiülő, bográcsozó és kemence is. A környék kiemelkedő adottságai között szerepel a kitűnő közlekedési lehetőség, hiszen a város főbb közlekedési csomópontjai könnyen elérhetők. A csendes, felkapott környék biztonságos környezetet biztosít, ahol a család minden tagja nyugodtan élvezheti a mindennapokat. Hévíz híres gyógyfürdőjéről és termálvizes medencéjéről, így a helyi lakosok számára számos kikapcsolódási lehetőség áll rendelkezésre, legyen szó wellnessről, gyógyturizmusról vagy aktív pihenésről. Ez a tehermentes ingatlan tökéletes választás lehet magánszemélyek és befektetők számára is, akik hosszú távú értékálló befektetést keresnek. Az ingatlan iránt érdeklődők bizalommal kereshetnek kérdéseikkel kapcsolatban, hiszen szívesen nyújtunk további információkat vagy akár személyes bemutatót is. Ne hagyja ki ezt a páratlan lehetőséget!

Hirdető adatai

Nyomtatóbarát változat
Ingatlan hirdetés ajánlása   Ingatlan monitor
Hirdető neve: Otthon Centrum
Kapcsolattartó: Kiss Levente
Hirdető telefonszáma: +36 70 388 5626
Honlap: -