Budapest, VI.kerület

Dessewffy utca 

Irányár: 640 000 Ft/hó
Típus: lakás (tégla)
Kategória: kiadó
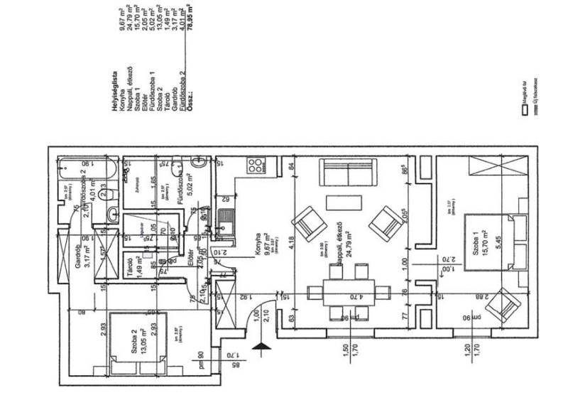
Alapterület: 83 m2
Fűtés: gáz (cirko)
Állapota: felújított
Szobák száma: 3
Építés éve: -
Szintek száma: 2
Telekterület: -
Kert mérete: -
Erkély mérete: -
Felszereltség: -
Parkolás: -
Kilátás: udvari
Egyéb extrák:  
-

Részletes leírás

Az Operaház közvetlen közelében, egy liftes, nemrégiben felújított társasház 2. emeletén hosszú távra kiadó egy 83 m²-es, modern, skandináv stílusban berendezett, elegáns lakás.A kényelmes elrendezésű otthonban két külön nyíló hálószoba, két fürdőszoba, egy világos, tágas nappali, teljesen felszerelt, minőségi konyha, valamint egy praktikus gardróbszoba található. A letisztult design, a cosy és igényes enteriőr, valamint a minőségi anyaghasználat otthonos, mégis stílusos életteret kínál.A környék infrastruktúrája kiváló: az Andrássy út, az M1-es metró, kávézók, éttermek és kulturális helyszínek pár perc sétával elérhetők.Az ingatlan 2025 szeptemberétől költözhető.Tulajdonosa igényes, hosszútávú ( minimum 1 évre ) bérlőt szeretne, 2 havi kaucióval azonnal költözhető.Várjuk Hívását!

Hirdető adatai

Nyomtatóbarát változat
Ingatlan hirdetés ajánlása   Ingatlan monitor
Hirdető neve: ArtsHome Ingatlaniroda
Kapcsolattartó: Pápai Gyöngyi
Hirdető telefonszáma: +36-30-074-4685
Honlap: -