Pest megye, Dabas

 

Irányár: 99 900 000 Ft
Típus: ház
Kategória: eladó
Alapterület: 93 m2
Fűtés: egyéb
Állapota: új
Szobák száma: 4
Építés éve: 2023
Szintek száma: -
Telekterület: 700 m2
Kert mérete: 700 m2
Erkély mérete: -
Felszereltség: -
Parkolás: -
Kilátás: -
Egyéb extrák:  
-

Részletes leírás

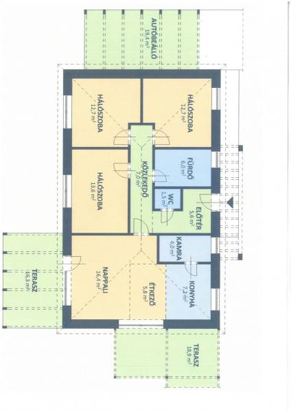
KERTES CSALÁDI IKERHÁZ egyik fele eladó Dabas központjához közel.3 hálószobás, szobás, világos, jó elosztású, nagyobb terekkel rendelkező, egyszintes családi ház. 93 nm a hasznos alapterület. Továbbá a ház része egy fedett, és egy fedetlen terasz, valamint egy fedett autóbeálló. a 700 nm-es telekrész elkerített, saját tulajdonú.A ház 2023-ban épült szeglemezes tetőszerkezettel, gipszkarton födémmel. tégla falazatú, a tető Bramac cseréppel borított. Az ablakok elektromos redőnnyel felszereltek.Hőszivattyúval működő padlófűtés, és 4 db Split klíma egyaránt rendelkezésre áll.Az ingatlan pontos belső elosztása a következő: étkező-konyha-nappali, 3 teljes értékű hálószoba, kamra, fürdőszoba wc-vel, vendég toalett.A parkolás fedett autóbeállóban megoldott.Fúrt kút, telepített öntözőrendszer, parkosított udvar, térburkolat.Napelemes rendszer, fűtés, és a meleg víz költségmentes.Beépített konyhabútor, benne páraelszívó, sütő, és főzőlap.

Hirdető adatai

Nyomtatóbarát változat
Ingatlan hirdetés ajánlása   Ingatlan monitor
Hirdető neve: Dabas Régió
Kapcsolattartó: Szlamka Klára
Hirdető telefonszáma: 06 20 400 4004
Honlap: -