Budapest, II.kerület

 

Irányár: 324 000 000 Ft
Típus: lakás (újépítésű)
Kategória: eladó
Alapterület: 108 m2
Fűtés: -
Állapota: új
Szobák száma: 3
Építés éve: 2022
Szintek száma: -
Telekterület: -
Kert mérete: -
Erkély mérete: 22 m2
Felszereltség: -
Parkolás: -
Kilátás: kertre néző
Egyéb extrák:  
-

Részletes leírás

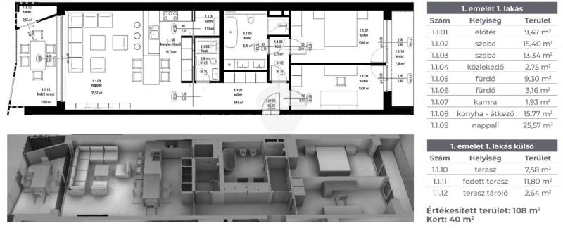
Megvételre kínálunk egy 5 lakásos új építésű luxus társasházban egy első emeleti lakást. (I.emelet 1.)Az 1. és 2. emeleten 2 – 2 db modern alaprajzi elrendezésű lakás, közös és privát kerttel és közös medencével.- a lakás értékesített területe 108 nm,- nappali,- konyha étkezővel- 2 hálószobával valamint 2 fürdőszobával rendelkezik,- 2 terasz, amelyből az egyik fedett és 11.80 nm, a másik 7.58 nm (terasz tároló 2.64 nm),- a privát használatú kert kb 40 nm,- a lakás déli tájolású,- smart home,- mennyezet hűtés - fűtés és padlófűtés hőszivattyúval.Várható befejezés: 2024. május végeA lakáshoz tartozik 2 beállós garázs (emelő - süllyesztős kialakítású) tartozik, amely megvásárlása opcionális. A 2 beállós garázs vételára: 30.000.000 Ft / garázsAz épület bejárata modern, minimál különleges belső építészeti megjelenéssel.Az épület földszintjén utcai árkádra nyíló üzlethelyiség + 12 beállásos garázs található.Rózsadomb alsó, városias része barátságos zöldövezeti környezettel. Könnyen megközelíthető közösségi közlekedéssel és gépkocsival is. Néhány perc sétával a budai Duna – parti sétány és a Margit sziget elérhető.A lakás négyzetméterára kulcsrakész állapotban (burkolatokkal), bútorok nélkül értendő!

Hirdető adatai

Nyomtatóbarát változat
Ingatlan hirdetés ajánlása   Ingatlan monitor
Hirdető neve: Most Home Kft.
Kapcsolattartó: Hatalyák Dalma
Hirdető telefonszáma: +36 70 412 5655
Honlap: -