Somogy megye, Siófok

 

Irányár: 69 500 000 Ft
Típus: lakás (újépítésű)
Kategória: eladó
Alapterület: 53 m2
Fűtés: elektromos
Állapota: új
Szobák száma: 3
Építés éve: 2026
Szintek száma: -
Telekterület: -
Kert mérete: -
Erkély mérete: 20 m2
Felszereltség: -
Parkolás: -
Kilátás: kertre néző
Egyéb extrák:  
-

Részletes leírás

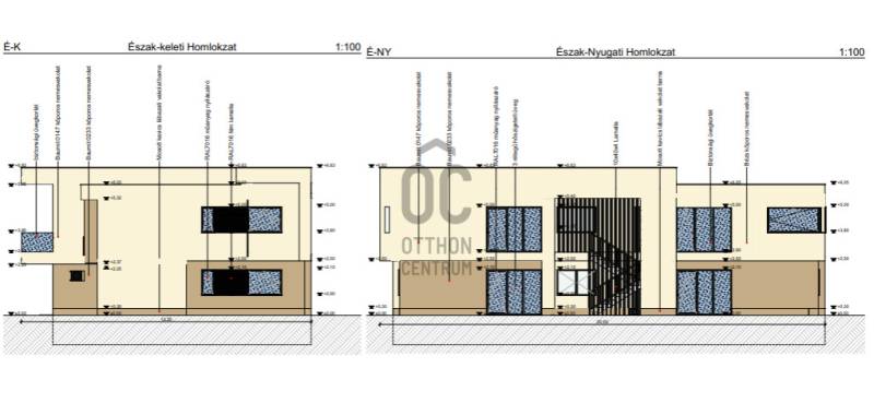
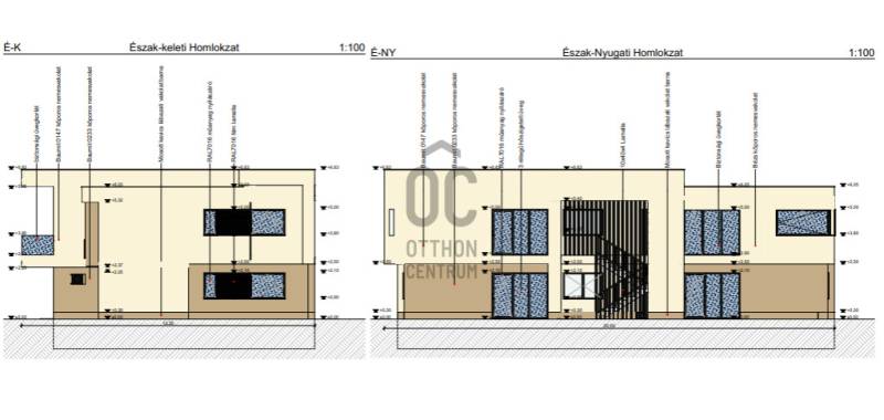
Földszinti lakás, terasszal ès önálló kerttel.Igen, lesz medence itt is…tetővel, fűtéssel, automata vegyszeradagolóval.Projekt bemutatásaSiófok kedvelt Sóstó városrészében új építésű lakásokat ajánlok figyelmetekbe: prémium minőségben 2026-05-31-i, ill. 2026-09-30 átadással! Kiváló lokáció, magas műszaki tartalom!Hagyományos építési alapokon fekvő modern lakóépület, mely a környezetébe simul, nem hivalkodó, de egyedi módon tűnik ki a többi ilyen jellegű beruházás közül. Az építtető az épületszerkezetek energetikai mutatóinak a passzív ház standard előírásainak megközelítését vagy elérését tűzte ki célul.2025-2026-ban megépülő új, 6 lakásos lakóépület lakásait kínálom megvételre. A ,,Dream Home\" elnevezés a csodálatos Balaton közelségére utal.A társasházról:6 x 6 lakásos fejlesztésünkben eladóak újépítésű lakásaink. MINDEGYIK lakásunk 2db hálószobát, 1db fürdőszobát és 1db élőteret (konyha, étkező, nappali) foglal magában.A ház a mai kor elvárásainak megfelelően természetesen MEDENCÉS.Az üdülő övezet új építésű egységes épített környezete biztonságot ad. A jól átgondolt koncepcióhoz modern kivitelezés társul – biztosítva a kilátást minden lakásból a ligetes környékre, ahol már érezhető a Balaton közelsége.Az épület közelsége a Balatonhoz 800 méter,10 perc sétával minden évszakban könnyen megközelíthető.A társasházban található lakástípusok minden igénynek megfelelő kialakítással bírnak. A földszinten kertkapcsolatos, az 1. emeleti zárószinten pedig erkélyes lakások várják új tulajdonosaikat.Külső falazat 45 cm vastag falazat,30 cm fokozottan hőálló képességű tégla falazat+ 15 cm grafitos polisztirol hőszigetelés rendszerben építve. Műanyag kültéri nyílászárókkal, 3 rétegű, fokozottan hőszigetelő üvegezéssel. A fürdőszobában és a konyhában páraérzékelős , automata szellőztető rendszer, homlokzati kivezetéssel kerül beépítésre.Villeroy & Boch ( vagy hasonló minőségű) szaniterek, Hans Grohe vagy Grohe csaptelepek.Belső felületek és anyagok, festés, tapétázás egyedi egyeztetés alapján. A beltéri ajtók egyedi lapra szerelt lengyel nyílászárók lesznek.A hűtő-fűtő berendezés egy már jól bevált, energetikailag kifejezetten modern megoldás, mely télen és nyáron is kellemes hőérzetet biztosít és akár távolról is vezérelhető. A lakásokban padlófűtés ill. klímás hűtés kerül kiépítésre, szabályzásuk 1 db termosztáttal megoldott, mely a műszaki tartalom részét képezi. A hűtést és fűtést az elektromos energiát felhasználó VRV rendszer biztosítja.A lakások fűtési-, hűtési energia -igényét egyedi Daikin split klímákkal fedezzük. 2 db beltéri egység létesül, elektromos padlófűtéssel kiegészítve. Távirányítással és telefonos applikációval működtetve. Szobánkénti termosztáttal vezérelve.Mindenképpen vonzerőnek számít az a zárt terület, mely kizárólag ehhez a társasházhoz tartozik, medencével.Budapesttől 1 óra az út az M7-es autópályán. Jól megközelíthető modern üdülőhely, amely állandó lakóhelynek is kiválóan alkalmas. A közlekedési lehetőségek kiválóak, hiszen a város központja mindössze néhány perc autóval.Tömegközlekedés is könnyen elérhető, így a város felfedezése egyszerű és kényelmes. A környék biztonságos, családbarát. A természet közelsége lehetővé teszi a szabadtéri tevékenységeket, mint például a kerékpározás, túrázás vagy a vízi sportok, hiszen a Balaton partja csak egy karnyújtásnyira van.A lakásokhoz a társasház zárt udvarán parkoló vásárolható elektromos töltési lehetőséggel: 3 M Ft-ért.2023-ban és 2024-ben a már átadott referenciaépületeink és a folyamatban lévő kivitelezéseink a helyszínen megtekinthetőek. Törekszünk a tökéletes kivitelezésre illetve a beépített anyagok magas minőségére is. A kellemes környezet és a minőségi lakóközösség várja azokat az Ügyfeleinket!Amennyiben felkeltettem érdeklődését forduljon hozzám bizalommal!Ha Ön egy olyan ingatlant keres, amely ötvözi a modern kényelmet a természet közelségével, ne habozzon, lépjen kapcsolatba velem bizalommal. Minden kérdésére szívesen válaszolok, és segítek Önnek megtalálni álmai otthonát vagy befektetési lehetőségét.

Hirdető adatai

Nyomtatóbarát változat
Ingatlan hirdetés ajánlása   Ingatlan monitor
Hirdető neve: Otthon Centrum
Kapcsolattartó: Takács Anna
Hirdető telefonszáma: +36 70 461 9421
Honlap: -