Veszprém megye, Balatonszepezd

 

Irányár: 67 000 000 Ft
Típus: lakás (újépítésű)
Kategória: eladó
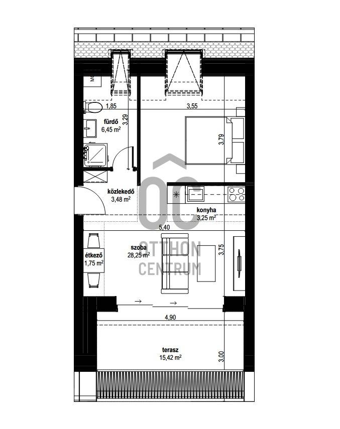
Alapterület: 39 m2
Fűtés: -
Állapota: új
Szobák száma: 2
Építés éve: 2024
Szintek száma: -
Telekterület: -
Kert mérete: -
Erkély mérete: 15 m2
Felszereltség: -
Parkolás: -
Kilátás: kertre néző
Egyéb extrák:  
-

Részletes leírás

Képzeld el, hogy egy gyönyörű, vízparti ingatlanban élhetsz, ahol a Balaton közelsége minden napod fénypontját adja. Ez a prémium kivitelezésű, új lakás Balatonszepezd szívében található, és ideális választás lehet középkorúak számára, akik a csendet és a nyugalmat keresik, de nem szeretnének lemondani a modern kényelmekről. Az ingatlan alapterülete 39 négyzetméter, amelyben két tágas szoba és egy fürdőszoba található, így tökéletes lehet akár egy fiatal pár, akár egy kis család számára. Az ingatlan kiváló állapotban van, a hőszivattyús fűtés és hűtés pedig biztosítja, hogy mindig kellemes klíma fogadjon otthonodban. Az erkély, amely 6 négyzetméter, csodálatos panorámát kínál, ahol reggelente a kávédat kortyolgatva élvezheted a Balaton lenyűgöző látványát. A környék kertvárosi hangulata pedig garantálja, hogy távol lehetsz a város zajától, miközben minden szükséges szolgáltatás karnyújtásnyira található. Balatonszepezd egy igazi gyöngyszem, ahol a természet és a modern életstílus harmonikusan találkozik. A környék biztonságos és csendes, ideális hely a pihenésre és a feltöltődésre. A közlekedési lehetőségek is kedvezőek: autóval gyorsan elérheted a közeli városokat, míg a tömegközlekedés is jól kiépített, így könnyedén közlekedhetsz a környező települések között. A vízpart közelsége nemcsak a nyári hónapokban kínál lehetőségeket, hanem egész évben kellemes kikapcsolódást nyújt. A közeli strandok, éttermek és szabadidős lehetőségek mind hozzájárulnak ahhoz, hogy itt mindig legyen valami izgalmas program. Az ingatlan ideális befektetési lehetőség is, hiszen a Balaton környéke folyamatosan népszerű a turisták körében, így a bérbeadás is vonzó opció lehet. Ne habozz, ha kérdéseid lennének, vagy szeretnéd megtekinteni ezt az exkluzív, vízparti ingatlant, bátran keress meg minket! Az ingatlanpiac dinamikusan változik, és ez a lehetőség nem marad sokáig nyitva. Bízz bennünk, és tapasztald meg, milyen érzés lehet egy ilyen csodálatos otthonban élni!

Hirdető adatai

Nyomtatóbarát változat
Ingatlan hirdetés ajánlása   Ingatlan monitor
Hirdető neve: Otthon Centrum
Kapcsolattartó: Varró Gábor
Hirdető telefonszáma: +36 70 388 5131
Honlap: -