Pest megye, Dunakeszi

 

Irányár: 119 900 000 Ft
Típus: ház
Kategória: eladó
Alapterület: 127 m2
Fűtés: gáz (cirko)
Állapota: -
Szobák száma: 4
Építés éve: 2024
Szintek száma: -
Telekterület: 653 m2
Kert mérete: 653 m2
Erkély mérete: -
Felszereltség: -
Parkolás: -
Kilátás: -
Egyéb extrák:  
-

Részletes leírás

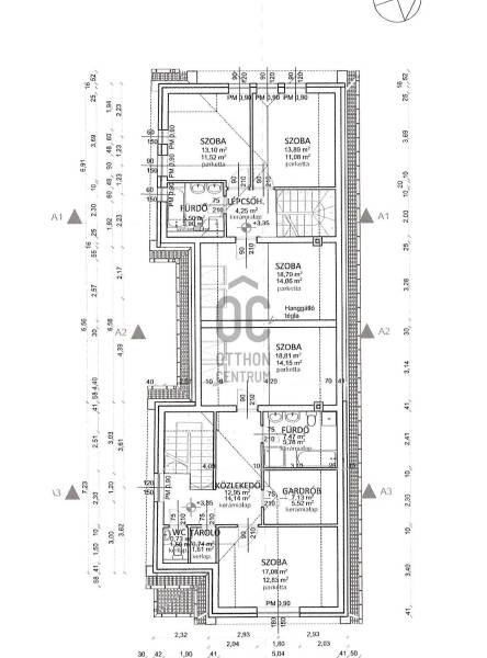
Dunakeszi kertvárosi részén, kellemes környezetben, eladó belső kétszintes ikerház rész. A környék jó adottságokkal rendelkezik, Budapest a gyorsforgalmi út közelsége miatt gyorsan elérhető, bevásárló központ , iskola, óvoda a közelben.A vonat állomás 5 perc séta távra.A kikapcsolódni vágyóknak a Duna part pár perc sétával elérhető.Jelenleg már csak egy ikerház fél első fele eladó, dupla komfortos, két fürdőszobával,külön WC-vel, saját fűtött garázzsal,gépészeti térrel, közlekedőkkel, nappali, konyha-étkező, valamint 3 hálószoba elrendezéssel.Az ikerház rész saját leválasztott kerttel rendelkezik .Az emeleti helyiségek és a kert elrendezése szabadon választható.Az eladó 1-es számú házrész méretei és elrendezése a mellékelt alaprajzon megtekinthető. Nettó 127 nm AZ ÁR SZERKEZETKÉSZ ÁLLAPOTRA VONATKOZIK!! A HÁZ BEFEJEZÉSÉRE VALÓ KÖLTSÉGEK, MEGEGYEZÉS SZERINT!Tervek, igény szerint: Az ingatlan kiemelkedően energiatakarékos, „A+” energetikai besorolású.A külső falazat Porotherm 25-as tégla, 15 cm-es dryvit hőszigeteléssel, a házrészek között 2 * 20 cm-es hangszigetelt fallal és szigetelt dilatációval. Műanyag korszerű nyílászárók A házrész fűtése akár felső kategóriás hőszivattyúval vagy gáz fűtéssel kérhető, Ezen kívül beépített redőnytokkal, elektromos redőnnyel, valamint riasztó előkészítéssel és elektromos garázskapukkal rendelkeznek. Mindegyik ingatlanhoz a normál 3 fázisú mérőn 3,5 kW napelem.A burkolatok és szaniterek szabadon választhatók .Szerződéskötéstől 3-4 hónap a kulcsra kész birtokba adás. Osztatlan közös tulajdon, ügyvédi megosztással

Hirdető adatai

Nyomtatóbarát változat
Ingatlan hirdetés ajánlása   Ingatlan monitor
Hirdető neve: Otthon Centrum
Kapcsolattartó: Soproni Brigitta
Hirdető telefonszáma: +36 70 716 8491
Honlap: -