Pest megye, Veresegyház

 

Irányár: 147 250 000 Ft
Típus: ház
Kategória: eladó
Alapterület: 120 m2
Fűtés: -
Állapota: új
Szobák száma: 5
Építés éve: 2025
Szintek száma: -
Telekterület: 960 m2
Kert mérete: 960 m2
Erkély mérete: 17 m2
Felszereltség: -
Parkolás: -
Kilátás: -
Egyéb extrák:  
-

Részletes leírás

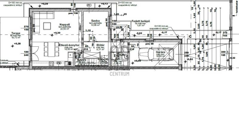
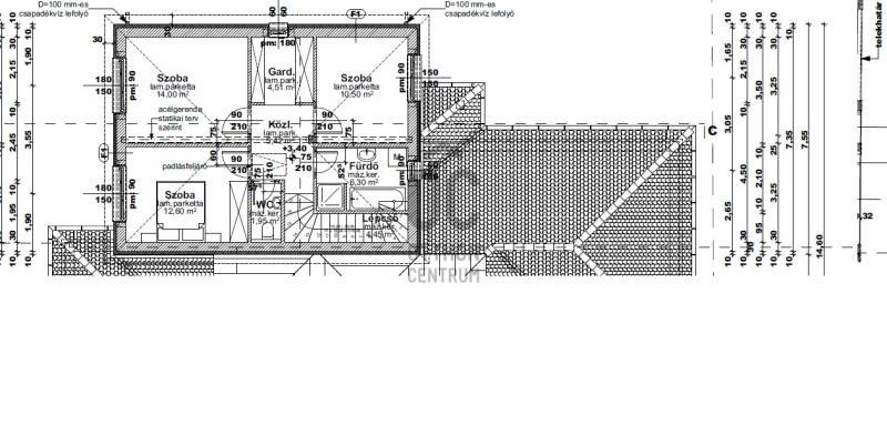
LeírásÚJ ÉPÍTÉSŰ IKERHÁZ VERESEGYHÁZ LEGJOBB RÉSZÉNSAJÁT KERT, megújuló energia, alacsony fenntartás.Veresegyház kiemelten jó lokációjában, kedvelt, családias részén eladó két darab belső kétszintes, összesen 128,7m²-es ikerházfél, saját garázzsal (22,24 m²) és 500 m²-es saját telekrésszel. Teljes mértékben pakolható padlástér. Az ikerházak csak a garázsnál érnek össze, így a privát élettér teljesen zavartalan.Főbb jellemzők:Nettó lakóterület / db: 128,7 m² + 22,24 m² garázs4 hálószoba + nappaliFedett külső tároló: 2,53 m²Saját 500 m²-es kert minden házfélhezBelső elrendezés igény szerint módosíthatóHőszivattyús fűtési rendszer (padlófűtéssel)Elektromos redőny előkészítésKlíma kiállás minden szobábanNapelem előkészítésMagas minőségű szigetelés és nyílászárókModern, energiatakarékos kialakításÁtadás várhatóan: 2026 április végénMegbízható, kiemelkedő referenciákkal és nagy múlttal rendelkezőkivitelező, rugalmas feltételek! Hívását hétvégén is fogadom! Irodánk teljes körű ügyintézéssel várja!

Hirdető adatai

Nyomtatóbarát változat
Ingatlan hirdetés ajánlása   Ingatlan monitor
Hirdető neve: Otthon Centrum
Kapcsolattartó: Mózes Adrienne
Hirdető telefonszáma: +36 70 388 6211
Honlap: -