Pest megye, Vácrátót

 

Irányár: 89 500 000 Ft
Típus: ház
Kategória: eladó
Alapterület: 89 m2
Fűtés: -
Állapota: új
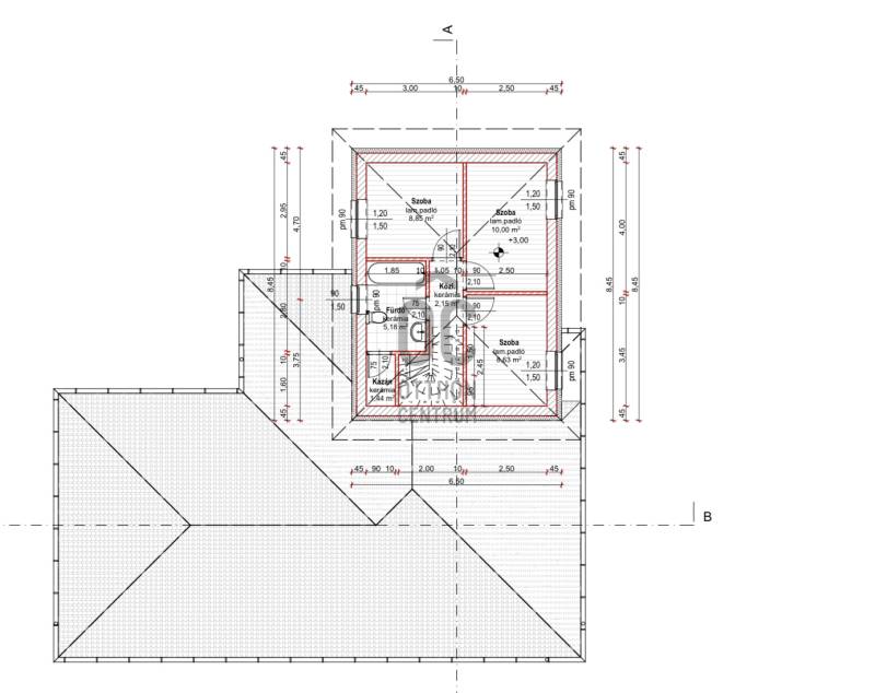
Szobák száma: 5
Építés éve: 2026
Szintek száma: -
Telekterület: 235 m2
Kert mérete: 235 m2
Erkély mérete: -
Felszereltség: -
Parkolás: -
Kilátás: -
Egyéb extrák:  
-

Részletes leírás

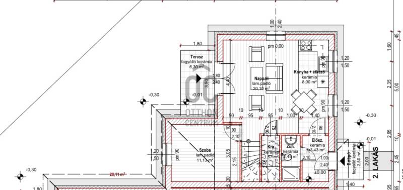
Újépítésű ikerház Vácrátóton, az Alborétum Lakóparkban!Egy 88,5 m²-es, kétszintes otthon jól átgondolt elrendezéssel és tágas terekkel várja a leendő tulajdonosát.Négy hálószoba és két fürdőszoba biztosítja a család kényelmét, a nagy amerikai konyhás nappali pedig valódi központi élettér, amelyet a látványtervek is bemutatnak.A nappaliból közvetlen kijárat nyílik a teraszra, amely a privát kerttel együtt tökéletes helyszínt ad a pihenéshez és a közös programokhoz.Az újépítésű ingatlan kivitelezése folyamatban van, a tetőszerkezetet építik. Így a projekt jelen fázisában a leendő tulajdonos még személyre szabhatja a kialakítás számos elemét.A munkálatokat megbízható, referenciákkal rendelkező kivitelező végzi, garantálva a magas minőséget és a precíz megvalósítást.Az ingatlan átadása 2026. Szeptemberre tehető. Az ár a kulcsrakész állapotú átadást tartalmazza!Az Alborétum Lakópark csendes, természetközeli környezete pedig ideális választás mindazoknak, akik új otthont keresnek nyugodtan, rendezett környezetben.A házzal szemben egy új, minden igényt kielégítő ,,Frakk\" játszótér épült, amely kialakításának mozgáskorlátozott gyermekek számára is teljesen használható lesz.

Hirdető adatai

Nyomtatóbarát változat
Ingatlan hirdetés ajánlása   Ingatlan monitor
Hirdető neve: Otthon Centrum
Kapcsolattartó: Gáll Viola
Hirdető telefonszáma: +36 70 716 9821
Honlap: -