Budapest, XV.kerület

 

Irányár: 137 500 000 Ft
Típus: lakás (újépítésű)
Kategória: eladó
Alapterület: 142 m2
Fűtés: -
Állapota: új
Szobák száma: 6
Építés éve: 2026
Szintek száma: -
Telekterület: -
Kert mérete: -
Erkély mérete: 17 m2
Felszereltség: -
Parkolás: -
Kilátás: utcai
Egyéb extrák:  
-

Részletes leírás

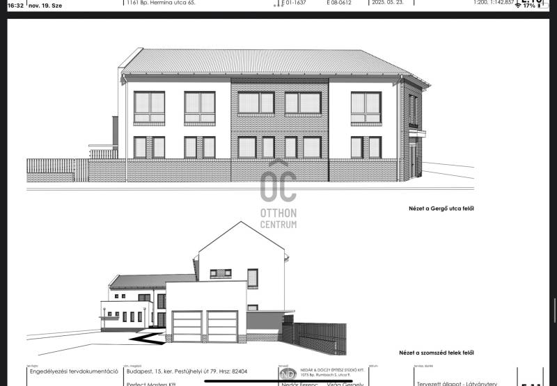
Most még elérhető!Eladó Pestújhelyen egy 142 m²-es, nappali + 5 szobás, újépítésű, kétszintes, 1. emeleti lakás16,91 m²-es nagyméretű erkéllyel, mindössze 4 lakásos társasházban!A XV. kerület egyik legkedveltebb részén található ingatlan világos, elegáns, modern belső terekkel és kiváló elrendezéssel rendelkezik.Elrendezés – Átgondolt, családbarát kialakításAlsó szint (88,5 m²):Tágas nappali amerikai konyhával2 külön nyíló szobaFürdőszobaIllemhely kézmosóval16,91 m²-es erkély gyönyörű kertvárosi panorámávalFelső szint egyéni kérésre igény szerint elkészítve : ezesetben +10 Millió Forint.Ami tartalmazhat + 2 ill. 3 külön bejáratú szobátvalamint Fürdőszobát WC-velA lakás ideális választás nagyobb családok számára, akik minőségi, hosszú távú otthont keresnek.✨ Prémium műszaki tartalom – kompromisszumok nélkülModern gépészet:Hőszivattyús padló- és mennyezetfűtésMennyezethűtés + fan-coil rendszerAriston okos melegvíz-rendszerAA–B energetikai besorolás → alacsony rezsi, maximális komfortMinőségi építőanyagok:3 rétegű VEKA nyílászárók12 cm Dryvit homlokzati szigetelés + 25 cm tetőtéri szigetelésSilka hanggátló falak → kiváló zajszigetelésModern, elegáns burkolatok és beltéri ajtókLetisztult, modern építészeti stílusAz ingatlan tehermentes, újépítésűElérhető a 3%-os hitelezési lehetőségA vevő rugalmasan dönthet burkolatokról, szaniterekről, festésről2026 év végéig birtokba vehetőKiváló lokáció – minden kéznélIskola, óvoda, boltok, orvosi rendelő – pár perc sétaCsendes, rendezett, biztonságos utcaKiváló tömegközlekedés → gyors belvárosi elérésIdeális kertvárosi hangulat és központi elhelyezkedés ritka párosításaTovábbi lehetőségekA lakáshoz tartozik – és kötelező megvásárolni:Zárt garázs: 8 millió Ft vagy Kocsibeálló: 4 millió FtSaját, önálló, zárható tároló: 4 millió FtEz a lakás nem csupán egy modern, kényelmes otthon, hanem egy magas műszaki tartalmú, értékálló befektetés is Pestújhely legjobb részén.Érdeklődés vagy megtekintés esetén várom hívását!Krasznai Izabella – otthon tanácsadó

Hirdető adatai

Nyomtatóbarát változat
Ingatlan hirdetés ajánlása   Ingatlan monitor
Hirdető neve: Otthon Centrum
Kapcsolattartó: Krasznai Izabella
Hirdető telefonszáma: +36 70 388 5056
Honlap: -