Budapest, VII.kerület

 

Irányár: 92 900 000 Ft
Típus: lakás (tégla)
Kategória: eladó
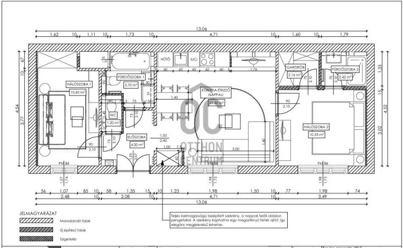
Alapterület: 56 m2
Fűtés: egyéb
Állapota: -
Szobák száma: 3
Építés éve: 1930
Szintek száma: -
Telekterület: -
Kert mérete: -
Erkély mérete: -
Felszereltség: -
Parkolás: -
Kilátás: udvari
Egyéb extrák:  
-

Részletes leírás

Eladó egy teljes körűen felújított, világos lakás Budapest VII. kerületében, a Dembinszky utcában, az Állatorvostudományi Egyetem közvetlen közelében, mindössze néhány perc sétára a Városligettől. Az ingatlan egy rendezett társasház második emeletén található, csendes, belső kertre néző elhelyezkedéssel. A lakás 56 m² alapterületű, praktikus elosztású, amerikai konyhás nappalival és két külön nyíló hálószobával, így ideális saját otthonnak vagy befektetésnek egyaránt.A lakás teljes körű felújításon esett át a műszaki alapoktól kezdve, minden vezeték, burkolat, szaniterek és nyílászárók cseréjével. A komfortot három darab hűtő-fűtő klíma, valamint mennyezetfűtés biztosítja, amely egyenletes, kellemes hőérzetet nyújt az egész lakásban. A fűtési és hűtési rendszer korszerű, energiatakarékos megoldásokra épül. A helyiségek világosak, jól szellőztethetők, a belső kialakítás modern és időtálló.Az ingatlan két fürdőszobával rendelkezik, melyek közül a fő hálószoba saját, külön bejáratú fürdőszobával lett kialakítva, így maximális kényelmet és intimitást biztosít. A második fürdőszoba szintén igényesen kialakított, a lakás elrendezése pedig praktikus és jól kihasználható.A társasház rendezett, a lakás elhelyezkedésének köszönhetően nyugodt lakókörnyezetet biztosít a belváros közepén. A környék kiváló infrastruktúrával rendelkezik, tömegközlekedés, üzletek, szolgáltatások és szabadidős lehetőségek könnyen elérhetők. A Városliget és az egyetem közelsége különösen vonzóvá teszi az ingatlant, így hosszú távú kiadásra és befektetésnek is kiváló választás. A lakás azonnal költözhető.

Hirdető adatai

Nyomtatóbarát változat
Ingatlan hirdetés ajánlása   Ingatlan monitor
Hirdető neve: Otthon Centrum
Kapcsolattartó: Gombos Endre Iván
Hirdető telefonszáma: +36 70 388 5556
Honlap: -